Темп работы современных предприятий стремителен, высокая конкуренция и кризисные явления ставят перед промышленностью задачи увеличения эффективности.
Складское хозяйство важная основа любого производства
Сокращение времени на всех операционных этапах, повышение точности, снижение затрат, увеличение контроля над производственными циклами стали объективными требованиями. Складское хозяйство важный элемент любого производственного процесса, так как от него, во многом, зависит общая производственная картина.
Технический аудит складского хозяйства
В 2020 году известное промышленное предприятие в Ростове-на-Дону обратилось в нашу компанию для проведения технического аудита функционирования складского хозяйства с целю его оптимизации, увеличения эффективности использования складских помещений, увеличения точности складских операций.
Небольшая площадь склада с большим объемом груза
В качестве исходных данных мы имели относительно не большую площадь, большой объем разнопланового хранимого груза с отличающимися темпами оборачиваемости, существенные бюджетные ограничения не позволяющие слишком высокий уровень автоматизации складских циклов. Ну и главное все необходимо было установить в имеющийся склад производства.
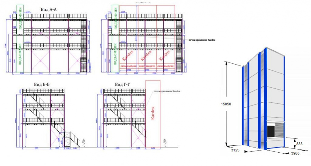
Складской комплекс с зонированием ТМЦ
В ходе анализа данных мы предложили создать складской комплекс позволяющий разграничить складские операции в соответствии с характером груза и характером обращений ТМЦ.
Средние и мелкие грузы характеризующиеся высокой оборачиваемостью, ценностью, существенной разницей массогабаритных характеристик, существенным весом, мы предложили уложить в вертикальные автоматические лифтовые системы хранения KARDEX высотой 15 метров.
Данные автоматизированные складские системы позволяют добиться высокой плотности хранения на небольшой площади и скорости доступа с четким отслеживанием складского порядка ТМЦ.
4 этажный дом - многоуровневый мезонин для склада
Однообразные габаритные грузы были расположены на четырех уровневом мезонинно-стеллажном комплексе (пол+3 уровня). Мезонин, точнее металлические стеллажи с многоуровневом мезонином оснащены проливным прессованным настилом соответствующим требованиям пожарной безопасности, и, при этом, имеет высокую несущую способность.
Многоярусные конструкции можно создавать используя как стальные платформы, так и зоны хранения на дополнительных уровнях, имеющих такую же площадь, как и напольные конструкции.

Применение такой совмещенной схемы позволило достичь сложного компромисса, но не потерять высокой эффективности склада.
Компания инноваций и технологий завершила модернизацию складского участка с полным вводом в эксплуатацию складского оборудования: 4-х этажного многоуровнего мезонина и 15 метровых автоматизированных систем хранения лифтового типа.
Характеристики складского комплексаМногоуровневый мезонин 4 уровня:
- Размер по каждому уровню 15,8 х 9 м.
- Несущая способность по каждому уровню не менее 200 /м2
- Общая площадь 568,8 м2
- Среднегрузовые стеллажи из расчета не менее 100 кг/м2
Вертикальны лифтовые системы хранения Kardex Remstar Shuttle XP 700:
- Внешние габариты: 3980х3125х15050 мм
- Общая площадь хранения 208,16 х 3 (624,48 м2 в 3 системах)
- Общий объем хранения 77,79 х3 (233,37 м3 в 3 системах)
- Общая грузоподъемность 42,900 кг х3 (128 700 кг в 3 системах)
- Средняя скорость доступа к грузу 50 сек в полном цикле
- Каждая система снаряжена 66 полками (198 полок в 3 системах)
- Размеры полок 3650х864 мм
- Грузоподъемность каждой полки 650кг.

Хотите организовать рабочие процессы на вашем складе или предприятии, в магазине или СТО эффективней, рекомендуем обратиться к профессионалам КИИТ - АО "Компания инноваций и технологий" - комплексное оснащение складов и предприятий в России. Обращайтесь!